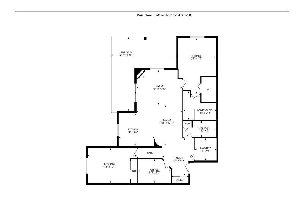
Welcome to Grande Lewis Estates! This bright, 2-bed plus den/office unit blends comfort and convenience with wonderful outdoor space. Enjoy central AC, a cozy gas fireplace, and that spacious balcony with serene views. The kitchen features crisp white cabinetry, tile backsplash, and ample natural light. Double oven is a great chef's touch! Primary bedroom features an ensuite and walk-in closet. In-suite laundry is a convenient touch. Includes 2 parking stalls (#331 & #336) and is well located in the heart of Lewis Estates with quick access to Henday, Whitemud, shopping, and amenities. Building updates are fully paid, with a strong reserve fund for peace of mind. A rare find in a prime location across the road from Lewis Estates Golf Course.
Address
#443 279 SUDER GREENS DR NW
List Price
$300,000
Property Type
Residential
Type of Dwelling
Apartment
Style of Home
Single Level Apartment
Transaction Type
Sale
Area
Edmonton
Sub-Area
Breckenridge Greens
Bedrooms
2
Bathrooms
2
Floor Area
1,255 Sq. Ft.
Lot Size
949.59 Sq. Ft.
Year Built
2004
Maint. Fee
$768.03
MLS® Number
E4466079
Listing Brokerage
RE/MAX River City
Basement Area
None, No Basement
Postal Code
T5T 6X6
Zoning
Zone 58
Parking
Stall, See Remarks
Community Features
Air Conditioner, Deck, Parking-Visitor, Social Rooms, Storage-In-Suite, Vinyl Windows, Storage Cage, Natural Gas BBQ Hookup
Exterior Features
Backs Onto Park/Trees, Corner Lot, Golf Nearby, Landscaped, Private Setting, Public Transportation, Schools, Shopping Nearby
Interior Features
ensuite bathroom
Heat Type
Hot Water, See Remarks
Construction Materials
Wood, Stone, Stucco
Direction Faces
North
Exposure
South West
Fireplace Features
Gas
Foundation Details
Concrete Perimeter
Garage Type
No
Roof
Asphalt Shingles
Access To Property
Paved



































